Neubau

Das Entwerfen ist eine Form der dialektischen Auseinandersetzung zwischen uns und unserer Umwelt. Dadurch wird nicht nur unsere Umwelt weiterentwickelt, sondern auch wir in unserer Denkweise und Arbeit.

Der Bedarf nach der Anpassung des Gebäudes an neue Entwicklungen und Funktionen erfordert von der Planung einen flexiblen Entwurf. Beim einfachen Entwerfen wird ein Konzept aufgestellt, ein flexibler Entwurf besteht dagegen aus mehreren Konzepten. Für jedes Konzept wird eine Lösung aus mehreren Varianten optimiert. Von den verschiedenen Konzepten rückt ein bevorzugtes oder aktuelles Konzept in den Vordergrund. Die Hintergrundkonzepte werden bezüglich ihrer Entwicklungsprognosen ausgebaut oder stellen Alternativen dar. Priorität besitzt jedoch das Vordergrundkonzept. Bei einer erforderlichen Anpassung oder einem Umbau ist die Umstellung auf eines der Hintergrundkonzepte mit relativ geringem Aufwand möglich.

Die größten Kosten einer Mängelbeseitigung liegen nicht in der Schadensbehebung selbst, sondern in den damit verbundenen Zerstörungen an der Konstruktion sowie der Wiederherstellung dieser. Eine nachhaltige Planung muss diese Tatsache berücksichtigen und eine reversible Konstruktion wählen, welche die Mängelbeseitigung wirtschaftlich optimiert. Selbstverständlich dient eine reversible Konstruktion auch der Gebäudeflexibilität.
Eine nachhaltige Bauplanung bezieht sogar die Gebäudenutzung sowie -verwaltung mit ein. Dadurch wird dem Facilitymanagement Rechnung getragen.

Die Bauökologie, welche den Faktor Umweltverträglichkeit in die quantifizierte Wirtschaftlichkeit bzw. in die Kostenberechnung immer noch nicht integrieren kann, bleibt ein Optimierungsparameter.

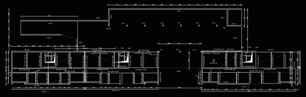
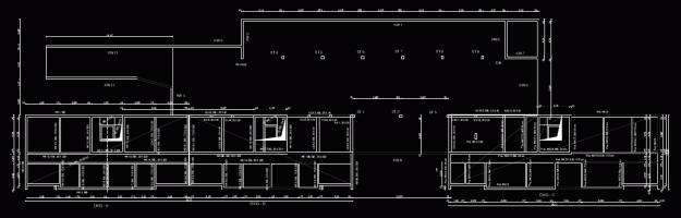
Statische Berechnug von Block A, B und C incl. Tiefgarage, Bad Töltz

Die Realisierung derartiger Entwürfe ist jedoch mit einem großem Planungsaufwand verbunden. Durch die modernen Datenverarbeitungssysteme wird diese Vorgehensweise jedoch ermöglicht. Mit anderen Worten, die neue Rechentechnik hat nicht nur eine Leistungssteigerung sowie eine höhere Produktivität hervorgebracht sondern auch eine neue Qualität der Planung.
Druckversion | Sitemap
Diese Homepage wurde von TWPL Ingenieurbüro für Tragwerkplanung Dr.-Ing. A. Sabha erstellt.